- トップページ
- 新築一戸建てをエリアから探す
- 市川市
- 柏井町
- 8号棟 市川市柏井町第14





◆スマートプラス松戸では幅広いエリアで豊富な物件をご紹介可能♪
◆お客様のご希望に沿うお住まいも弊社ならきっと見つかります!
\住宅ローンならお任せください!最適な金融機関をご紹介いたします♪/
◆借入がある・転職したて・過去に金融事故があった・他社様でダメだった・・・
◆スマートプラス松戸にぜひ一度ご相談ください!通過実績多数ございます♪
\お客様のご都合に合わせてご見学可能!送り迎えもご相談ください♪/
◆当日はもちろん、お仕事終わりの夜間やスキマ時間など短時間でもご案内可能♪
◆ご自宅や最寄り駅などへのご送迎もお任せください!
すべての画像
~新規物件が誕生です~ ・皆様お待たせいたしました。市川市柏井町に新規物件が誕生いたしました。 ・このエリアでお探しの方は、まずはお気軽にお問い合わせくださいませ。お待ちしております。
~収納豊富なプランを採用~ ・ウォークインクローゼットなど収納豊富なプランを採用。家の中がスッキリと片付きます。 ・今のお住まいと収納力をぜひ比較してみてください。
~カースペース2台分ご用意~ ・2台分のカースペースがございますので、車通勤の方やご来客の多い方にもお勧めのお住まいです。 ・余裕の敷地で余裕の新生活をお過ごしいただけます。
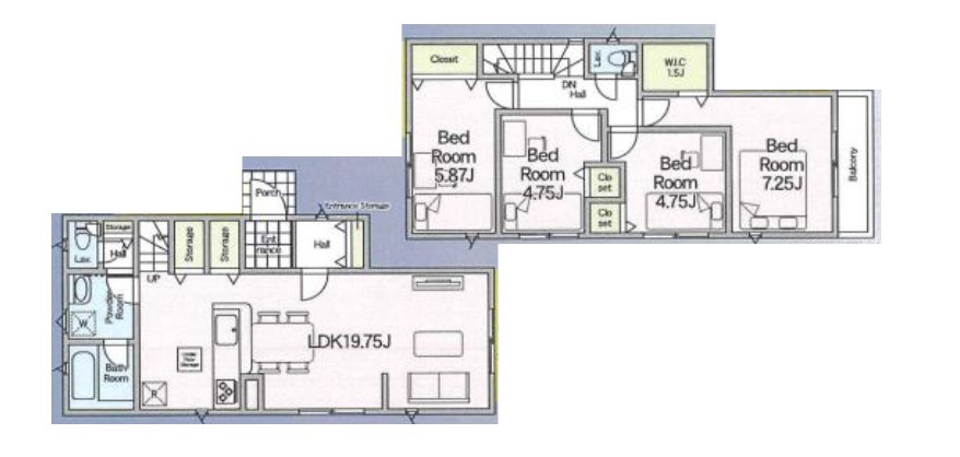
~余裕の空間が広がるLDK~ ・19.75帖あるLDKはご家族団らんのお時間を余裕の広さで演出してくれます。 ・ご内覧の際は家具の配置などもイメージしながらご覧くださいませ。
~家具の配置がしやすい間取~ ・LDKはリビングとダイニングの境目が分かりやすくなっており、家具の配置がしやすい造り。 ・どんなインテリアにするか考えるだけでも楽しくなりますね。
~人気のカウンターキッチン~ ・キッチンには余計な柱が無いので、リビングが見渡せ開放感のある造りとなっております。 ・蛇口には浄水器が内蔵されるなど機能面でも優れたキッチンです。
~使い勝手の良いシステムキッチン~ ・料理がしやすい設計のキッチンでお料理もはかどりますね。 ・もちろんキッチン下部は収納になっておりますので、フライパンなども収納可能です。
~暖房乾燥機付きの浴室~ ・ヒートショック対策にもなる浴室暖房を標準装備。冬場でも暖かくしてからご入浴が可能です。 ・もちろん乾燥機も付いておりますので、雨の日でも洗濯物を干せますよ。
~人気の三面鏡を採用~ ・洗面台は三面鏡仕様なので鏡の角度を変える事で頭の後ろの方までご確認可能です。 ・鏡の裏が収納になっておりますので、洗面台周りもスッキリと片付きます。
~収納豊富な洋室~ ・各居室に備え付けの収納をご用意。タンスなどを置く場合と比べ出っ張らないので部屋の中を有効のご活用いただけます。 ・収納の広さなどぜひ現地でご確認くださいませ。
~2面採光の明るいお部屋~ ・洋室は2面採光とする事で穏やかな陽の入る明るい空間となっております。 ・くつろぎのプライベート時間を明るい空間で穏やかにお過ごしいただけます。
~自然な風合いの洋室~ ・ナチュラルな色彩で纏められた洋室は家具のコーディネートもしやすくなっております。 ・どんな家具にするか考えるだけでも楽しくなってきますね。
~オプション施行もお任せください~ ・フローリングの変色など劣化を軽減し、水をこぼした場合などにも防いでくれるフロアコーテイングが人気となっております。 ・オプション施行もお任せください。
その他
その他
~ウォークインクローゼットのあるお部屋~ ・人気のウォークインクローゼットをご用意。季節物や趣味の道具などもスッキリと収納が可能です。 ・最近流行りの収納術などもぜひご活用くださいませ。
洋室
~憧れのウォークインクローゼット~ ・居室にウォークインを設ける事で季節ものや趣味の用具などもスッキリと収納可能です。 ・ぜひ現地でその便利さをご体感くださいませ。
~穏やかな陽の入る玄関~ ・玄関ドアのガラスに窓を設ける事で穏やかな陽の入る玄関に。 ・ご家族やご来客を明るい空間で出迎えてくれます。
~洗濯物も干しやすいバルコニー~ ・バルコニーには物干し竿受けが標準装備されております。 ・テラス屋根等のオプションもお気軽にご相談くださいませ。
~完成物件もご案内可能~ ・ご案内時には実際の立地に加え、同メーカー・同仕様の完成物件もご案内可能です。 ・ぜひ現地と建物をご覧いただき、具体的にイメージしてみてくださいませ。
~ご家族を守る「耐震等級3」~ ・住宅性能評価において「耐震等級3」を取得。地震に強い家であることが証明されております。 ・倒壊の恐れが低くなりますので、地震保険が半額になるメリットも。
~閑静な住宅街の立地~ ・周辺は閑静な住宅街となっておりますので、静かな暮らしをご実現いただけます。 ・前面道路の交通量も多くないので、小さなお子様がいるご家庭でもご安心ですね。
~資金計画もお任せください~ ・ご見学はもちろん、住宅ローンなど資金面のご相談だけでもお気軽にどうぞ。 ・プロのアドバイザーがお客様にとって最適なプランをご提案させていただきます。
担当スタッフより

- 大和田 真孝
- 市川市のお住まいなら「スマートプラス松戸」へ♪他社様でローンがダメだった・転職したて・頭金なし・借入がある・・・などでもローン通過実績あり!資金面のご相談だけでもお気軽にどうぞ♪
各棟情報
物件詳細情報
物件No.20000440115-002
| 所在地 | 千葉県市川市柏井町2丁目 | ||
|---|---|---|---|
| 交通 | 武蔵野線「船橋法典」駅徒歩21分 武蔵野線「市川大野」駅徒歩31分 京成本線「京成中山」駅徒歩52分 |
||
| 間取 | 4LDK (LDK19.75帖、洋室7.25帖、洋室5.87帖、洋室4.75帖、洋室4.75帖) | ||
| 土地面積 | 110.88m² 実測 | ||
| 建物面積 | 98.4m² | ||
| 販売戸数 | 1戸 | 総戸数 | 全9戸 |
| 構造・規模 | 木造 2階建て | 築年・入居 | 2026年3月 |
| バルコニー | 東向き | 建物現況 | 建築中 |
| 建築確認番号 | 第KBI-SGM25-10-3981号 | 駐車スペース | 2台可(カースペース) |
| 引渡時期 | 期日指定有(2026年4月) | 地目 | 宅地 |
| 用途地域 | 第一種住居地域/第一種低層住居専用地域 | 建ぺい率 | 60%/50% |
| 容積率 | 200%/100% | 都市計画 | 市街化区域 |
| 権利種類 | 所有権 | 接道 | 南側8M公道に接道 南東側4.5M私道に接道 |
| 小学校区 | 市川市立柏井小学校(176m) | 中学校区 | 市川市立第五中学校(1700m) |
| 取引態様 | 媒介 | ||
| 設備 | 公営水道、個別浄化槽、都市ガス | ||
| その他制限事項 | 景観法、高さ最高限度有、日影制限有 | ||
| 備考・制限等 | 建築基準法第22条区域 | ||
こだわり項目
- ※価格は物件の代金総額を表示しており、消費税が課税される場合は税込み価格です。(1,000円未満は切り上げ。)
税率は引き渡し時期により異なりますので、各物件の詳細につきましてはお問い合わせください。 - ※敷地権利が借地権のものは価格に権利金を含みます。
- ※制作中に内容が変更される場合もありますので、あらかじめご了承ください。
- ※購入の前には物件内容や契約条件についてご自身で十分な確認をしていただくようにお願いいたします。
- ※完成予想図はいずれも外構、植栽、外観等実際のものとは多少異なることがあります。
- ※CG合成の画像の場合、実際とは多少異なる場合があります。
周辺地図
周辺施設一覧
- ショッピングセンター
- スーパー
- コンビニ
- ドラッグストア
- ホームセンター
- 飲食店
- その他店舗
- 商店街
- 大学
- 専門学校
- 高校・高専
- 中学校
- 小学校
- 保育園
- 幼稚園
- 公民館・児童館
- 病院
- 郵便局
- 役所
- 図書館
- 金融機関
- 警察・消防
- 趣味・娯楽施設
- 公園・運動施設
- 周辺の街並み
- 駅
- その他
お問い合せ先
- 株式会社smartplus 松戸
- お電話でのお問い合わせは
0120-500-968「ホームページを見た」とお問い合わせください - 千葉県松戸市常盤平5-28-5 ジュウェル常盤平1-2号
- 営業時間:9:00~18:00
- 定休日:無休
- 免許番号:千葉県知事(1)第18791
- トップページ
- 新築一戸建てをエリアから探す
- 市川市
- 柏井町
- 8号棟 市川市柏井町第14














