- トップページ
- 中古マンションをエリアから探す
- 松戸市
- 松戸
- 松戸東光マンション





◆スマートプラス松戸では幅広いエリアで豊富な物件をご紹介可能♪
◆お客様のご希望に沿うお住まいも弊社ならきっと見つかります!
\住宅ローンならお任せください!最適な金融機関をご紹介いたします♪/
◆借入がある・転職したて・過去に金融事故があった・他社様でダメだった・・・
◆スマートプラス松戸にぜひ一度ご相談ください!通過実績多数ございます♪
\お客様のご都合に合わせてご見学可能!送り迎えもご相談ください♪/
◆当日はもちろん、お仕事終わりの夜間やスキマ時間など短時間でもご案内可能♪
◆ご自宅や最寄り駅などへのご送迎もお任せください!
すべての画像
~新規物件が誕生です~ ・皆様お待たせいたしました。松戸市松戸に新規物件が誕生いたしました。 ・このエリアでお探しの方は、まずはお気軽にお問い合わせくださいませ。お待ちしております。
~余裕の空間が広がるLDK~ ・16.6帖あるLDKはご家族団らんのお時間を余裕の広さで演出してくれます。 ・ご内覧の際は家具の配置などもイメージしながらご覧くださいませ。
~収納豊富なプランを採用~ ・ウォークインクローゼットなど収納豊富なプランを採用。家の中がスッキリと片付きます。 ・今のお住まいと収納力をぜひ比較してみてください。
~穏やかな陽の入るLDK~ ・大きな窓のあるLDKは陽当りも良好で明るい空間となっております。 ・ご家族団らんなど過ごす時間の多いLDKが明るいのは嬉しいポイントですね。
~家具の配置がしやすい間取~ ・LDKはリビングとダイニングの境目が分かりやすくなっており、家具の配置がしやすい造り。 ・どんなインテリアにするか考えるだけでも楽しくなりますね。
~リビング収納のあるプラン~ ・意外と少ないリビング収納をしっかりとご用意。 ・掃除機や買い溜めしたティッシュ、トイレットペーパーなど様々なものが収納可能です。
~食器洗浄機を標準装備~ ・キッチンにはビルトインタイプの食器洗浄機を標準装備。 ・家事にかける時間を削減でき、「自分時間」を増やすことができる嬉しいアイテムです。
~人気のカウンターキッチン~ ・キッチンには余計な柱が無いので、リビングが見渡せ開放感のある造りとなっております。 ・蛇口には浄水器が内蔵されるなど機能面でも優れたキッチンです。
~暖房乾燥機付きの浴室~ ・ヒートショック対策にもなる浴室暖房を標準装備。冬場でも暖かくしてからご入浴が可能です。 ・もちろん乾燥機も付いておりますので、雨の日でも洗濯物を干せますよ。
~オプション工事もお任せください~ ・せっかくの良い住宅を更に良くする各種オプション工事。 ・ご予算やご希望に応じ様々なご提案が可能です。ぜひお気軽にご相談くださいませ。
~人気の三面鏡を採用~ ・洗面台は三面鏡仕様なので鏡の角度を変える事で頭の後ろの方までご確認可能です。 ・鏡の裏が収納になっておりますので、洗面台周りもスッキリと片付きます。
~やはり便利なタンク式トイレ~ ・最近はタンクレストイレもございますが、タンク式の場合は停電時もお水を流すことが可能。 ・故障時なども比較的費用が安くなるなど、メリットが多くなります。
~2面採光の明るいお部屋~ ・洋室は2面採光とする事で穏やかな陽の入る明るい空間となっております。 ・くつろぎのプライベート時間を明るい空間で穏やかにお過ごしいただけます。
~自然な風合いの洋室~ ・ナチュラルな色彩で纏められた洋室は家具のコーディネートもしやすくなっております。 ・どんな家具にするか考えるだけでも楽しくなってきますね。
~収納豊富な洋室~ ・各居室に備え付けの収納をご用意。タンスなどを置く場合と比べ出っ張らないので部屋の中を有効のご活用いただけます。 ・収納の広さなどぜひ現地でご確認くださいませ。
~憧れのウォークインクローゼット~ ・居室にウォークインを設ける事で季節ものや趣味の用具などもスッキリと収納可能です。 ・ぜひ現地でその便利さをご体感くださいませ。
~十分な容量のシューズボックス~ ・備え付けのシューズボックスは充分な容量を確保。 ・より大型のものへのご変更などご希望の方もお気軽にご相談くださいませ。
~洗濯物も干しやすいバルコニー~ ・バルコニーには物干し竿受けが標準装備されております。 ・テラス屋根等のオプションもお気軽にご相談くださいませ。
~ルーフバルコニーを採用~ ・バルコニーはワイドタイプなので、洗濯物を沢山干す事が可能です。 ・テラス屋根などのオプションもお気軽にご相談くださいませ。
~バルコニーからの眺望~ お部屋の延長として、外の空気を感じながらリラックスできるスペースをご提供。 朝のコーヒーや夕方の読書にぴったりです。 周囲の景色や夕日を楽しむことも魅力のひとつです。
~資金計画もお任せください~ ・ご見学はもちろん、住宅ローンなど資金面のご相談だけでもお気軽にどうぞ。 ・プロのアドバイザーがお客様にとって最適なプランをご提案させていただきます。
~お問合せはお気軽に~ ・お仕事帰りの遅い時間や短時間のご案内、不動産会社に休みの多い水曜日などでもご対応可能です。 ・ぜひお気軽にお問合せくださいませ。お待ちしております!
相模台小学校 477m
第一中学校 902m
担当スタッフより

- 及川 和輝
- 松戸市のお住まいなら「スマートプラス松戸」へ♪他社様でローンがダメだった・転職したて・頭金なし・借入がある・・・などでもローン通過実績あり!資金面のご相談だけでもお気軽にどうぞ♪
物件詳細情報
物件No.20000447633
| 所在地 | 千葉県松戸市松戸 | ||
|---|---|---|---|
| 交通 | 常磐線「松戸」駅徒歩6分 京成松戸線「上本郷」駅徒歩29分 常磐線「北松戸」駅徒歩37分 |
||
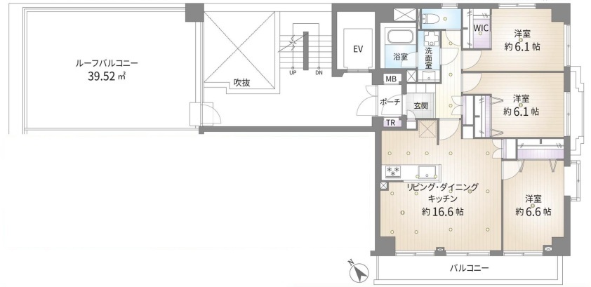
| 間取 | 3LDK + WIC、TR (LDK16.6帖、洋室6.6帖、洋室6.1帖、洋室6.1帖) | ||
| 専有面積 | 79.72m² (壁芯) | ||
| バルコニー面積 | 8.42m² 南西向き (ルーフバルコ二ー:39.52㎡) | ||
| 販売戸数 | 1戸 | 総戸数 | 全15戸 |
| 構造・規模 | 鉄筋コンクリート造 7階建て 6階部分 |
築年・入居 | 1996年12月築 |
| 施工会社 | (株)フジタ | 現況 | 空室 |
| 引渡時期 | 即引渡可 | 権利種類 | 所有権 |
| 管理費 | 23,100円/月 | 修繕積立金 | 33,000円/月 |
| 管理形態 | 巡回 全部委託 | 管理会社 | (株)東京建物アメニティサポート |
| 駐輪場料金 | 300円/月 | ペット | 相談 |
| 小学校区 | 松戸市立相模台小学校(363m) | 中学校区 | 松戸市立第一中学校(507m) |
| 取引態様 | 媒介 | ||
| リフォーム |
|
||
| 設備 | 公営水道、本下水、都市ガス | ||
| その他制限事項 | 景観法、日影制限有 | ||
こだわり項目
- ※価格は物件の代金総額を表示しており、消費税が課税される場合は税込み価格です。(1,000円未満は切り上げ。)
税率は引き渡し時期により異なりますので、各物件の詳細につきましてはお問い合わせください。 - ※敷地権利が借地権のものは価格に権利金を含みます。
- ※制作中に内容が変更される場合もありますので、あらかじめご了承ください。
- ※購入の前には物件内容や契約条件についてご自身で十分な確認をしていただくようにお願いいたします。
- ※完成予想図はいずれも外構、植栽、外観等実際のものとは多少異なることがあります。
- ※CG合成の画像の場合、実際とは多少異なる場合があります。
周辺地図
周辺施設一覧
- ショッピングセンター
- スーパー
- コンビニ
- ドラッグストア
- ホームセンター
- 飲食店
- その他店舗
- 商店街
- 大学
- 専門学校
- 高校・高専
- 中学校
- 小学校
- 保育園
- 幼稚園
- 公民館・児童館
- 病院
- 郵便局
- 役所
- 図書館
- 金融機関
- 警察・消防
- 趣味・娯楽施設
- 公園・運動施設
- 周辺の街並み
- 駅
- その他
お問い合せ先
- 株式会社smartplus 松戸
- お電話でのお問い合わせは
0120-500-968「ホームページを見た」とお問い合わせください - 千葉県松戸市常盤平5-28-5 ジュウェル常盤平1-2号
- 営業時間:9:00~18:00
- 定休日:無休
- 免許番号:千葉県知事(1)第18791














