- トップページ
- 新築一戸建てをエリアから探す
- 印西市
- 草深
- ウィザーズガーデン印西牧の原





◆スマートプラス松戸では幅広いエリアで豊富な物件をご紹介可能♪
◆お客様のご希望に沿うお住まいも弊社ならきっと見つかります!
\住宅ローンならお任せください!最適な金融機関をご紹介いたします♪/
◆借入がある・転職したて・過去に金融事故があった・他社様でダメだった・・・
◆スマートプラス松戸にぜひ一度ご相談ください!通過実績多数ございます♪
\お客様のご都合に合わせてご見学可能!送り迎えもご相談ください♪/
◆当日はもちろん、お仕事終わりの夜間やスキマ時間など短時間でもご案内可能♪
◆ご自宅や最寄り駅などへのご送迎もお任せください!
すべての画像
~新規物件が誕生です~ ・皆様お待たせいたしました。印西市草深に新規物件が誕生いたしました。 ・このエリアでお探しの方は、まずはお気軽にお問い合わせくださいませ。お待ちしております。
~穏やかな陽の入るLDK~ ・大きな窓のあるLDKは陽当りも良好で明るい空間となっております。 ・ご家族団らんなど過ごす時間の多いLDKが明るいのは嬉しいポイントですね。
~今人気の「平屋」プラン~ ・バリアフリー性に優れ、ワンフロアで完結出来る事から人気が高まっている「平屋」プラン。 ・ぜひ一度ご見学いただき、その魅力をご体感くださいませ。
~カースペース2台分ご用意~ ・2台分のカースペースがございますので、車通勤の方やご来客の多い方にもお勧めのお住まいです。 ・余裕の敷地で余裕の新生活をお過ごしいただけます。
~家具の配置がしやすい間取~ ・LDKはリビングとダイニングの境目が分かりやすくなっており、家具の配置がしやすい造り。 ・どんなインテリアにするか考えるだけでも楽しくなりますね。
~食器洗浄機を標準装備~ ・キッチンにはビルトインタイプの食器洗浄機を標準装備。 ・家事にかける時間を削減でき、「自分時間」を増やすことができる嬉しいアイテムです。
~人気のカウンターキッチン~ ・キッチンには余計な柱が無いので、リビングが見渡せ開放感のある造りとなっております。 ・蛇口には浄水器が内蔵されるなど機能面でも優れたキッチンです。
~暖房乾燥機付きの浴室~ ・ヒートショック対策にもなる浴室暖房を標準装備。冬場でも暖かくしてからご入浴が可能です。 ・もちろん乾燥機も付いておりますので、雨の日でも洗濯物を干せますよ。
~人気の三面鏡を採用~ ・洗面台は三面鏡仕様なので鏡の角度を変える事で頭の後ろの方までご確認可能です。 ・鏡の裏が収納になっておりますので、洗面台周りもスッキリと片付きます。
~収納も充実の洗面所~ ・洗面所にはリネンスペースを設ける事でタオルや洗剤などの置場にも困りません。 ・意外とリネンスペースがある物件は少ないので、ぜひ現地でその魅力をご確認ください。
~埋め込み式の収納~ ・トイレットペーパーを収納できる埋め込み式のトイレ収納。 ・床に置かなくて済むので掃除も楽々です。
~自然な風合いの洋室~ ・ナチュラルな色彩で纏められた洋室は家具のコーディネートもしやすくなっております。 ・どんな家具にするか考えるだけでも楽しくなってきますね。
~収納豊富な洋室~ ・各居室に備え付けの収納をご用意。タンスなどを置く場合と比べ出っ張らないので部屋の中を有効のご活用いただけます。 ・収納の広さなどぜひ現地でご確認くださいませ。
~2面採光の明るいお部屋~ ・洋室は2面採光とする事で穏やかな陽の入る明るい空間となっております。 ・くつろぎのプライベート時間を明るい空間で穏やかにお過ごしいただけます。
~オプション施行もお任せください~ ・フローリングの変色など劣化を軽減し、水をこぼした場合などにも防いでくれるフロアコーテイングが人気となっております。 ・オプション施行もお任せください。
~憧れのウォークインクローゼット~ ・居室にウォークインを設ける事で季節ものや趣味の用具などもスッキリと収納可能です。 ・ぜひ現地でその便利さをご体感くださいませ。
~パントリーのあるお住まい~ ・キッチン横にパントリー(食糧庫)をご用意。買い溜めした食材などはもちろん、ティッシュなどの置場としてもご利用いただけます。 ・ぜひ現地でご確認くださいませ。
~十分な容量のシューズボックス~ ・備え付けのシューズボックスは充分な容量を確保。 ・より大型のものへのご変更などご希望の方もお気軽にご相談くださいませ。
~余裕の広さの玄関~ ・玄関スペースを大きく取る事でご帰宅された際の開放感が違います。 ・お客様を出迎える顔にもなる玄関、この広さは魅力的ですね。ぜひ現地でご体感くださいませ。
~広々したお庭のある邸宅~ ・余裕の敷地には広いお庭もご用意。 ・ガーデニングや安らぎの空間として、倉庫を置いたりと様々な活用が可能です。 ・人工芝の敷設などもお気軽にご相談くださいませ。
~閑静な住宅街の立地~ ・周辺は閑静な住宅街となっておりますので、静かな暮らしをご実現いただけます。 ・前面道路の交通量も多くないので、小さなお子様がいるご家庭でもご安心ですね。
~資金計画もお任せください~ ・ご見学はもちろん、住宅ローンなど資金面のご相談だけでもお気軽にどうぞ。 ・プロのアドバイザーがお客様にとって最適なプランをご提案させていただきます。
~お問合せはお気軽に~ ・お仕事帰りの遅い時間や短時間のご案内、不動産会社に休みの多い水曜日などでもご対応可能です。 ・ぜひお気軽にお問合せくださいませ。お待ちしております!
原小学校 400m
担当スタッフより

- 及川 和輝
- 印西市のお住まいなら「スマートプラス松戸」へ♪他社様でローンがダメだった・転職したて・頭金なし・借入がある・・・などでもローン通過実績あり!資金面のご相談だけでもお気軽にどうぞ♪
物件詳細情報
物件No.20000450668
| 所在地 | 千葉県印西市草深 | ||
|---|---|---|---|
| 交通 | 北総線「印西牧の原」駅徒歩15分 北総線「千葉ニュータウン中央」駅4700m ユーカリが丘線「中学校」駅8700m |
||
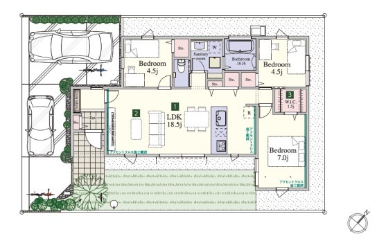
| 間取 | 3LDK + パントリー (LDK18.5帖、洋室7帖、洋室4.5帖、洋室4.5帖) | ||
| 土地面積 | 173.81m² 実測 | ||
| 建物面積 | 76.24m² | ||
| 販売戸数 | 1戸 | 総戸数 | 全1戸 |
| 構造・規模 | 木造 1階建て | 築年・入居 | 2025年5月 |
| 建物現況 | 完成済 | 建築確認番号 | 千建住第241852号 |
| 駐車スペース | 2台可(カースペース:並列) | 引渡時期 | 即引渡可 |
| 用途地域 | 無指定地域 | 権利種類 | 所有権 |
| 小学校区 | 印西市立原小学校(400m) | 中学校区 | 印西市立西の原中学校(900m) |
| 取引態様 | 媒介 | ||
| 設備 | 公営水道、個別浄化槽、都市ガス | ||
| その他制限事項 | 景観法 | ||
こだわり項目
- ※価格は物件の代金総額を表示しており、消費税が課税される場合は税込み価格です。(1,000円未満は切り上げ。)
税率は引き渡し時期により異なりますので、各物件の詳細につきましてはお問い合わせください。 - ※敷地権利が借地権のものは価格に権利金を含みます。
- ※制作中に内容が変更される場合もありますので、あらかじめご了承ください。
- ※購入の前には物件内容や契約条件についてご自身で十分な確認をしていただくようにお願いいたします。
- ※完成予想図はいずれも外構、植栽、外観等実際のものとは多少異なることがあります。
- ※CG合成の画像の場合、実際とは多少異なる場合があります。
周辺地図
周辺施設一覧
- ショッピングセンター
- スーパー
- コンビニ
- ドラッグストア
- ホームセンター
- 飲食店
- その他店舗
- 商店街
- 大学
- 専門学校
- 高校・高専
- 中学校
- 小学校
- 保育園
- 幼稚園
- 公民館・児童館
- 病院
- 郵便局
- 役所
- 図書館
- 金融機関
- 警察・消防
- 趣味・娯楽施設
- 公園・運動施設
- 周辺の街並み
- 駅
- その他
お問い合せ先
- 株式会社smartplus 松戸
- お電話でのお問い合わせは
0120-500-968「ホームページを見た」とお問い合わせください - 千葉県松戸市常盤平5-28-5 ジュウェル常盤平1-2号
- 営業時間:9:00~18:00
- 定休日:無休
- 免許番号:千葉県知事(1)第18791
- トップページ
- 新築一戸建てをエリアから探す
- 印西市
- 草深
- ウィザーズガーデン印西牧の原


























